Frequently Asked Questions
Below you will find information that might help you understand how to find things or learn about information you might need to know about your city or town.
Planning
1-
Planning
Bluffdale City Codehttps://bluffdale.municipalcodeonline.com/book?type=ordinances#name=PREFACE
Business Licensing
3-
A Business License is city permission to operate a legal business within the boundaries of the issuing government body. In Bluffdale City Ordinance 3-1-1, the term 'business' includes all activities engaged in within the city carried on for the purpose of gain or economic profit, except that the acts of employees rendering services to employers shall not be included in the term business, unless otherwise specifically provided.Business Licensing
-
Business Licensing
All businesses being conducted from a location in Bluffdale City are generally subject to licensing requirements. However, certain business professions are specifically exempt by the State of Utah from license fees. Even though these professions are exempt from license fees, they typically are not exempt from the rest of the license process including filing a valid license application and completing necessary safety inspections or zoning requirements.
If your business will be located in a commercial zone, it is advisable that you contact the Planning and Zoning department at 801-858-0510 for specific zoning requirements and restrictions prior to signing a lease or filing a license application. If you are not sure that your business requires a license or if you feel that your business may qualify for a special exemption, you may contact the Business License office directly at 801-254-2200 for clarification.
-
Business Licensing
Please contact the Business License Official (801-849-9402) for specific forms, information and requirements if your business entity is:
• Temporary or itinerant in nature
• Involved with the sale or consumption of alcohol
• Door-to-door soliciting or mobile vending
• A sexually oriented business
• Firearms dealer
• Pawn shop or a second hand dealer
• Massage Therapy Establishment
If the State of Utah requires a license for your profession, you will be asked to submit a copy at the time of application.
The State of Utah, in cooperation with several local government entities, has developed a "One-Stop Business Registration" website. This website streamlines many of the processes for registering a new business. The site is available 24 / 7 and will guide you through a series of questions designed to determine which State or Federal registrations and forms are applicable to your type of business. Many of the assigned tax numbers, business registrations and accounts assigned through this site are a necessary precursor to the business license process. It is easy and a lot less time consuming and cumbersome than physically visiting each agency in person.A Bluffdale City license is required in addition to any state license
Human Resources
1-
To apply for an open position, please submit a Bluffdale City Employment Application and resume to Bluffdale City Corporation, 14350 South 2200 West, Bluffdale, Utah 84065 or email to sthayer@bluffdale.com. For further information, contact Bluffdale City Human Resources at 801-254-2200.Human Resources
City Recorder
1-
Fill out and submit the attached GRAMA Request Form.City Recorder
Emergency Management
11-
Emergency Management
The areas near Rose Creek and the Jordan River are the most susceptible to flooding.
All residents may reach out to the Public Works Department at 801-254-2200 to request sandbags.
Review these map resources to learn more:
Salt Lake County Floodplain Map:
https://storymaps.arcgis.com/stories/5e0fdc6fc3de4e89937ba199afb6828fState of Utah Flood Risk Map:
https://floodhazards.utah.gov/property-owners/Federal Emergency Management Agency (FEMA) Flood Insurance Rate Maps (FIRM):
https://msc.fema.gov/portal/searchPossible flooding is more likely if your home, residence, or business is located within a FEMA regulated 100-yr floodplain (1-percent Annual Chance Flood) special flood hazard area (SFHA).
-
Emergency Management
Residents in neighborhoods with high groundwater levels should check their sump pumps to ensure they are in working order, landscaping, gutter drainage.
-
Emergency Management
The four main canals that flow through Bluffdale are not typically a flood risk, as they are not filled until at least April 15th, and canal companies control water levels. Much like the canals, the amount of water allowed into the Jordan River from Utah Lake is controlled. The Jordan River will see more significant flows but should not see volume above the flood rim level.
-
Emergency Management
The Jordan River will see more significant flows but should not see volume above the flood rim level. The flows through the Jordan River are controlled, but groundwater levels may be high in areas near the river, so it's important for residents who live in those areas to check to make sure their sump pumps are in working order.
Learn more about potential flood areas:
Salt Lake County Public Works Map
https://slco.maps.arcgis.com/apps/webappviewer/index.html?id=ed68dc2b532f432db3f1d17dee1042bcState of Utah Flood Risk Map:
https://floodhazards.utah.gov/property-owners/Federal Emergency Management Agency (FEMA) Flood Insurance Rate Maps (FIRM):
https://msc.fema.gov/portal/searchPossible flooding is more likely if your home, residence, or business is located within a FEMA regulated 100-yr floodplain (1-percent Annual Chance Flood) special flood hazard area (SFHA).
-
Emergency Management
All residents can take action to prepare their homes for extra moisture, whether in spring storms, high groundwater, or flooding.
Some of those actions include
- Checking rain downspouts to ensure they point away from your home and away from window wells
- Placing your garbage can further from the curb on garbage day to allow water to flow freely down the street
- Ensuring your landscaping is sloped away from your home and window wells
- Clearing storm drain inlets around homes
- Protecting your property by having flood insurance
Find more information on these websites:
Salt Lake County Flood Preparedness:
https://storymaps.arcgis.com/stories/5e0fdc6fc3de4e89937ba199afb6828fBe Ready Utah:
https://beready.utah.gov/utah-hazards/flood/ -
Emergency Management
Call the Public Works Department at 801-254-2200 to request sandbags and find out where to pick them up.
Bluffdale City is providing 10 sandbags per household.
Salt Lake County residents can get up to 25 sandbags. Find more information at https://slcoem.org/sandbag-locations/
-
Emergency Management
Residents are encouraged to visit the SLCO Flood Preparedness website to review the information provided regarding sandbags and other recommendations for use in preparing for flooding events: https://slco.org/flood-control/flood-preparedness-manual/.
-
Emergency Management
Contact the Public Works Department if you notice flooding in the City. During normal business hours at 801-254-2200 and after hours and on weekends at 801-559-7783.
If you see areas of overland flooding along rivers, creeks, streams, canals, or areas of channel erosion, call Salt Lake County Flood Control at (385) 468-6600.
-
Emergency Management
If debris is within local roadways or intersections, contact our public works department at 801-254-2200 for those local drainage problems. If you need to contact them after normal business hours and on weekends call 801-559-7783.
If the debris is in a river, creek, stream, or canal, contact SLCO Flood Control at 385-468-6600.
-
Emergency Management
City and County resources are spread thin and do not have the staff to respond immediately to every storm drain inlet that is blocked and needs to be cleared. This is why we are asking residents to help if they see small debris (small branches, sticks, and leaves) blocking or clogging roadside storm drain inlets by using a rake and removing and disposing of the debris. This is a quick and easy way to reduce the chances of small nuisance flooding.
-
Emergency Management
Feel free to reach out to Public Works or the Emergency Manager, Bart Barton, at 801-258-2200.
Animal Control
3-
No more than 2 large animals per 1/2 acres. Contact animal control or planning for setbacks of corrals and other accessory buildings that may house animals. Be aware of nuisance orders, noise and smell.Animal Control
-
Yes, a kennel is allowed with 1-1/2 acres and no more than 5 animals total.Animal Control
-
Yes, within 10 day s of getting the animal the dog will need to be licensed. No more than 3 dogs per lot. Rabies vaccination and licensing is due December 31st of each year.Animal Control
Trash & Recycling
9-
Trash & Recycling
Which color can is for garbage, recycling, and yard waste?
- Green = Garbage: Picked up weekly on your regularly scheduled collection day.
- Blue = Recycle (Becomes New): Collected every other week on the same day as your garbage pickup. Map linked here.
- Yellow lid/Green Can = Yard Waste: Collected weekly, March through December extended by popular demand, on the same day as your garbage pickup.
Note: Residents are only billed for green waste service during these 9 months.
-
Trash & Recycling
If you need to add extra containers (Trash, Recycle or Green Waste), please complete the request form online or visit City Hall to fill one out in person.
Due to our growing community and the high volume of phone calls, we are unable to take these requests over the phone. Submitting the form is required and is the only way we can ensure your request is properly processed.
-
Trash & Recycling
Hazardous waste information, including acceptable items, drop-off locations, hours of operation, and contact details, can be found on the Salt Lake County Health Department’s website:
-
Trash & Recycling
GLASS RECYCLING
In Salt Lake County, you can recycle glass through Momentum Recycling's curbside service or at designated drop-off locations. Momentum Recycling also operates the ONLY curbside glass collection in the area.
For drop-off locations, you can find a map on SLC.gov. Additionally, some cities like Sandy, South Jordan, and Midvale offer their own glass recycling programs and drop-off locations.
Curbside Recycling:
- Momentum Recycling offers curbside glass recycling in Salt Lake City and some other areas. This service is typically monthly and billed with your other utilities.
Drop-off Locations:
- Salt Lake County Drop Off Sites:
- SLC.gov provides a map of drop-off locations for residents.
- Sandy City: Sandy City has a drop-off bin at Alta Canyon Recreation Center.
- South Jordan: South Jordan City offers several drop-off locations.
- Midvale: Midvale City has a drop-off bin behind the old fire station.
Additional Tips:
- Remember to remove lids and caps from glass bottles and jars before recycling, says the city of Camden.
- For broken glass, wrap it securely in newspaper or cardboard and label the package "Broken Glass" before disposing of it in the trash, according to Earth911.
- Momentum Recycling is a local company that processes the collected glass into new products. slc.gov
-
Trash & Recycling
-
Trash & Recycling
The following four holidays could delay your pick-up if your pick up is on a weekday: New Year’s Day, 4th of July, Thanksgiving Day & Christmas Day.
If your pick-up falls on or after the holiday, your pick-up will be delayed by one day for that week only.
-
Trash & Recycling
What can I place in my waste bins?
Trash all green can (Household Waste):
Includes general household garbage that is not recyclable or compostable.Recycle all blue can:
Refer to the complete recycling list for details on accepted items.Green Waste green can with a yellow lid:
Acceptable items include residential yard and garden waste such as:- Grass and lawn clippings (not in plastic bags)
- Tree limbs and shrub trimmings
- Leaves, weeds, plants, and flowers
- Garden waste
- Wood chips, sawdust, and untreated wood scraps (under 6 inches in diameter and 2 feet long)
Items NOT accepted in the green waste can:
- Soil, dirt, or rocks
- Lawn Sod
- Household or food waste
- Treated or painted wood
- Paper or plastic bags
- Grass clippings or leaves in plastic bags
If you don’t already have a green waste can (green with a yellow lid), visit the form on the Utility Page.
-
Trash & Recycling
Have questions about your solid waste service or billing?
For assistance with high bills, past due accounts, charges for extra cans, or other utility-related concerns, please contact us:📧 Email: utilities@bluffdale.gov
📞 Call: 801-254-2200 and select the Utilities extension
We're happy to help with any service or billing questions!
-
Trash & Recycling
Missed Pickups
If your cans did not get emptied on the scheduled day by 7pm you can fill this form out and we will notify Waste Management as this comes directly to our Utility Inbox that we check. **Please note that your missed garbage may not be picked up the same day you contact us, but we will try our best.
Courtesy Pickup Requests
Missed your Trash, Recycling, or Green Waste pickup?
If your can was missed due to being placed out late, blocked by a vehicle, or overflowing, Bluffdale City offers a one-time courtesy pickup for these situations.
To request a courtesy pickup, please fill out the form online and in the comments section and notate that this is for a courtesy pickup.
Please ensure your can is accessible at the curb. Future missed pickups due to the same issues may not be eligible for additional courtesy service.
Utility Services
8-
Utility Services
How do I sign up for Utility services?
Complete the online application and make sure that you have proof of purchase before submitting.
Services will not be added in any other name than the Property Owner. We do provide a courtesy copy of the bill to the Tenant, and they do have an option to pay online as well.
-
Utility Services
Utility bills are mailed between the 5th and 10th of each month and are always due on the 25th. You can also view your bill anytime online by visiting Xpressbillpay.com
-
Utility Services
You can pay in any of the following ways:
Xpress Bill Payhttps://www.xpressbillpay.com/#/?org=bluffdale10049
City Hall - 2222 W 14400 South - Hours: 8:30 a.m. - 5:00 p.m., Mon - Fri.
Drop box between the Fire Station and City Hall - NO CASH
Mail to: 2222 W 14400 South Bluffdale , UT 84065
By phone - 801-254-2200 -
Utility Services
Sign up for online bill payment is free by using Xpress Bill Pay. This is also a great tool for payment reminders, bill notifications and online newsletter.
Only VISA & Mastercard & Bank EFTs are accepted forms of payment with Bluffdale City.
Instructions on this are on the main Utility page
-
Utility Services
To cancel your utility services, please fill out the Cancel/Disconnect Form located on the Bluffdale City website under the Utilities section. This will ensure your services are properly disconnected and your final bill is processed accurately as well as out of your name on the account. The City is not notified if a property sells so it is the property owner's responsibility to notify us for Final Bills. We will disconnect you the date we receive the form unless it is in the middle of billing and then it will be after the 1st of the month.
**If you are a Renter this does not apply as the Utilities stay in the homeowner’s name**
-
Utility Services
If you need to add, remove, or replace waste cans, please complete this form OR visit City Hall to fill one out in person. Due to the high volume of requests, submitting this form is required and is the only way we can ensure your request is processed.
-
Utility Services
The Canal Companies determine when they release the flow of water into the Canals. Bluffdale City does not determine this.
-
Utility Services
Why Is My Water Shut Off?
Your water service may be temporarily shut off for one of the following reasons:
- Non-Payment: If your water service has been disconnected due to a balance more than 60 days past due, and you did not contact the Utility Department by the Friday prior to the shut-off week (2nd Wednesday of every month) to make a payment agreement:
- The full account balance must be paid in full, plus a $110.00 shut off/reconnection fee, before service is restored.
- Partial payments will not prevent disconnection or restore service once it has been turned off.
- To avoid disruption, please contact the Utility Billing Department at 801-254-2200 or utilities@bluffdale.gov before the deadline to discuss payment arrangements.
- No Application on File: If a new property owner does not submit an application for utility services within one week of closing, service may be disconnected.
- Water Leak or Emergency Repair: In the event of a water line break, emergency repair, or leak on the city or customer side, water may be shut off to prevent damage and ensure safety.
- Hydrant Maintenance or Repairs: Temporary service interruptions may occur during scheduled fire hydrant testing or repairs in your area. This may also arise unexpectedly & we have no way of notifying you prior due to an emergency.
What Should I Do?
- If your service was disconnected for non-payment, please log in to your Xpress Bill Pay Account/Create one at Xpress Bill Pay or call the Utility Billing Department at 801-254-2200 to pay your bill and schedule a reconnection.
- If you recently purchased a property, please complete the Utility Service Application available on the Utilities page as soon as possible.
- For emergency shutoffs due to repairs or maintenance, service is typically restored the same day. If you need more information, call the Water Department at 801-849-9463.
For any questions, contact us at utilities@bluffdale.gov or 801-254-2200 (select the Utility Billing option).
- Non-Payment: If your water service has been disconnected due to a balance more than 60 days past due, and you did not contact the Utility Department by the Friday prior to the shut-off week (2nd Wednesday of every month) to make a payment agreement:
2023 Budget
21-
2023 Budget
In government, we use fund accounting (not to be confused with fun accounting). Different revenue sources can only be used to pay for specific expenses. These differing revenues and expenses are tracked in separate funds (accounting books).
The different budget funds are shown in the following graphic (click to enlarge):
-
2023 Budget
Property tax is calculated to be revenue neutral, generally meaning that when property values increase, the property tax rates decrease. Or, when property values decrease, the property tax rate increases. So, even if your property value increases, that doesn’t mean the city will get more revenue. This is why the Certified Tax Rate (CTR) changes each year.
Also, only a small percentage of the overall property tax comes to Bluffdale City. Other entities like Jordan School District and Salt Lake County, also levy taxes on your property. They can choose to change their CTR to increase the amount of revenue they receive. They also have Truth in Taxation notification process, just like the City does.
The amount of increase the City is proposing will increase the property tax revenue overall around $570,000.
-
2023 Budget
The Capital Projects Fund primarily is comprised of state and county grants, state legislative allocations, federal ARPA funds, and proceeds from our UDOT PRB transaction. These are restricted funds.
-
2023 Budget
The FY2023 budgeted transfer is Federal ARPA funds that are restricted in their use. The Council has directed that the money be spent on one-time major equipment costs in the Fire and Police departments.
-
2023 Budget
The 5% increase in salaries increases the General Fund costs by $167,858. Increasing salaries by 2% increases the General Fund costs by $67,642. Our model is not designed to calculate raises based on a specific salary level.
-
2023 Budget
100% of the proposed tax increase is restricted to be used in the Fire and Police Protection Fund. It cannot be used for any other City purpose. It will be used to fund increases in salaries in the fire and police departments and to hire full-time, frontline fire fighters so that there will be 2 full-time, frontline fire fighters in the stations on each of of the 3 shifts -- A,B & C.
-
2023 Budget
The City Council will re-evalutate any future needs each year.
-
2023 Budget
There are certain things -- like car registrations -- that are not taxed but rather pay a fee in lieu of a tax. Businesses that hold personal property pay taxes on that personal property.
-
2023 Budget
An increase will not occur in 2024 and has been deleted.
-
2023 Budget
We cannot transfer money from the Fire and Police Protection Fund back to the General Fund. We are transferring money from the General Fund to the Fire and Police Protection Fund.
-
2023 Budget
Without the tax increase we would reduce our police services and not hire full-time, frontline fire fighters nor give any raises to fire department personnel.
-
2023 Budget
Under the City Council's direction, our fiscal policy is to pay recurring operating expsenses with recurring revenue sources. This is one-time money.
-
2023 Budget
Capital projects are only paid from the restricted Capital Projects Fund. The Capital Projects Fund cannot be used to pay for operating costs.
-
2023 Budget
The City Council directed a 5% salary increase across the board to improve the City's ability to retain and hire needed employees in all departments.
-
2023 Budget
The City has successfully promoted increased sales tax revenue from online sales. Any specific programs you would like to recommend and help push will be welcomed.
-
2023 Budget
Last year our residents asked for a transparent way to track the costs of our Fire and Police Services. They want to be able to verify that a proposed property tax increase would be used to pay for improvements in our Fire and Police Services. The accounting in the Fire and Police Protection Fund clearly and transparently shows the sources of the revenue and where the money is being spent. No money can be transferred out of this fund to pay for any other City needs.
-
2023 Budget
The council agrees with our firefighting professionals that 2 full-time, frontline firefighter positions this year is the appropriate starting point.
-
2023 Budget
Under the City Council’s direction, our fiscal policy is to pay recurring operating expenses with recurring revenue sources. The surpluses are one-time money. The events that create surpluses vary and are not a reliable base for paying for major recurring costs. The public safety surpluses primarily represent daily positions that were not filled. It is expected that changing two of those positions to full-time in FY2024 will reduce the unfilled positions and, thereby, reduce or eliminate the surplus in the fire department.
Even with 100% of property taxes going to the new fund, those taxes pay for less than half the cost. We will supplement the new fund with over $5 million from the General Fund. With no property taxes in the general fund, it will rely on less stable revenue sources to make up the difference.
-
2023 Budget
- Contact the City Council members via email.
- Contact Mayor Hall via email.
- See the Mayor's Messages on budgeting in the Newsletter
- Talk to the Finance Department
-
2023 Budget
Salt Lake County offers a tax relief program for those who qualify. You must apply by September 1, 2023. They also have other assistance programs, like rental relief, available. Learn more about the programs and see if you qualify at slco.to/TaxRelief or slco.to/AssistancePrograms.
Accessory Dwelling Units (ADU)
13-
Accessory Dwelling Units (ADU)
We are in the beginning stages of working with Salt Lake County Housing Authority to create the kit. You can read through the rest of the FAQs to find answers to common questions and how to apply for the permit needed.
-
Accessory Dwelling Units (ADU)
- Definitions (Refer to Bluffdale City Code (BCC) 11.20.020
- ACCESSORY DWELLING UNIT (ADU): A habitable living unit added to, created within, or detached from a primary dwelling and contained on one lot for the purpose of offering a long-term rental or occupancy of thirty (30) consecutive days or longer.
- ACCESSORY DWELLING UNIT, DETACHED (D-ADU): An accessory dwelling unit, located in a permanent structure with a permanent foundation, detached from a primary dwelling for the purpose of offering a long-term rental or occupancy of thirty (30) consecutive days or longer.
- ACCESSORY DWELLING UNIT, INTERNAL (I-ADU): An accessory dwelling unit created:
- Within a primary dwelling;
- Within the footprint of the primary dwelling at the time the internal accessory dwelling unit is created; and
- For the purpose of offering a long-term rental or occupancy of thirty (30) consecutive days or longer.
- Definitions (Refer to Bluffdale City Code (BCC) 11.20.020
-
Accessory Dwelling Units (ADU)
- Internal ADUs (I-ADUs) shall be a permitted use in all primary residential zoning districts, mixed-use zones, and special district zones within single-family dwellings on parcels greater than 6,000 square feet.
- Detached ADUs (D-ADUs) shall be a permitted use in all primary residential zoning districts, mixed-use zones, and special district zones on individual lots or parcels that contain no more than one single-family dwelling.
- An application for an ADU shall include documentation, using forms provided by the Planning Department, that demonstrates an owner occupant resides in the primary dwelling or the ADU on the property pursuant to subsection 11.340.040(I).
-
Accessory Dwelling Units (ADU)
One ADU of any type is allowed per qualifying parcel or lot.
-
Accessory Dwelling Units (ADU)
- Creates a legal way to create a 2nd (accessory) dwelling on your property/within your dwelling
- Provides a safer way to create another dwelling unit, by requiring an ADU to be compliant with adopted building and fire code standards
- Assists in the provision of moderate-income housing or more affordable housing within the city
- Provides a housing opportunity for those who may need a smaller space, more affordable space, or a space near family due to age or other life transitions
-
Accessory Dwelling Units (ADU)
-
Accessory Dwelling Units (ADU)
- Provide a complete application to the building department
- Be sure to provide the following information along with all other required application materials
- Site plan, floor plan
- Off-street parking stalls req’d
- Site plan, floor plan
-
Accessory Dwelling Units (ADU)
ADU Ordinance can be found in the City Code Section 11.340.
-
Accessory Dwelling Units (ADU)
ADUs are not allowed to be used as short-term rentals and require occupancy of 30 days or greater.
-
Accessory Dwelling Units (ADU)
Detached (D-ADUs) & Internal (I-ADUs)
-
Accessory Dwelling Units (ADU)
*Refer to BCC 11.340.40 for all standards.
- Size: ADU cannot exceed 50% of gross sq. ft. of main dwelling
- Only one ADU allowed per property
- Separate utility meters may not be installed for any I-ADU or D-ADU.
- No separate addressing
- Total residents in an ADU cannot exceed that number allowed for a “family” (refer to BCC 11.20)
- Family
- One person living alone;
- Two (2) or more persons related by blood, marriage, adoption, or factual and functional equivalent living together in a single dwelling unit and maintaining a common household; or
- Not more than four (4) unrelated persons residing together as a single, nonprofit housekeeping unit.
- Family
-
Accessory Dwelling Units (ADU)
*Refer to BCC 11.340.050 and underlying residential zone for all standards
- A D-ADU shall comply with the same setbacks for an accessory building in the zoning district in which the lot or parcel is located. Regardless of size, a D-ADU cannot be created within a building or structure which has utilized the reduced side and rear setbacks allowed for small accessory buildings or structures found in BCC 11.160.260. All structures shall also comply with the maximum lot coverage percentages for the zone in which it resides.
- The height of a D-ADU shall conform to the height limit specified for accessory buildings in the zoning district in which it is located.
- Balconies on a D-ADU shall be located on the interior side of the lot and building, not adjacent to a rear or side yard shared with a neighboring residence, and:
- Shall not exceed 80 square feet in size when located above the ground level of the building;
- Shall be located a minimum of 20 feet from a side or rear yard lot line unless the applicable side or rear yard lot line is adjacent to an alley;
- Rooftop decks or second-story decks are prohibited on an accessory structure used as a D-ADU.
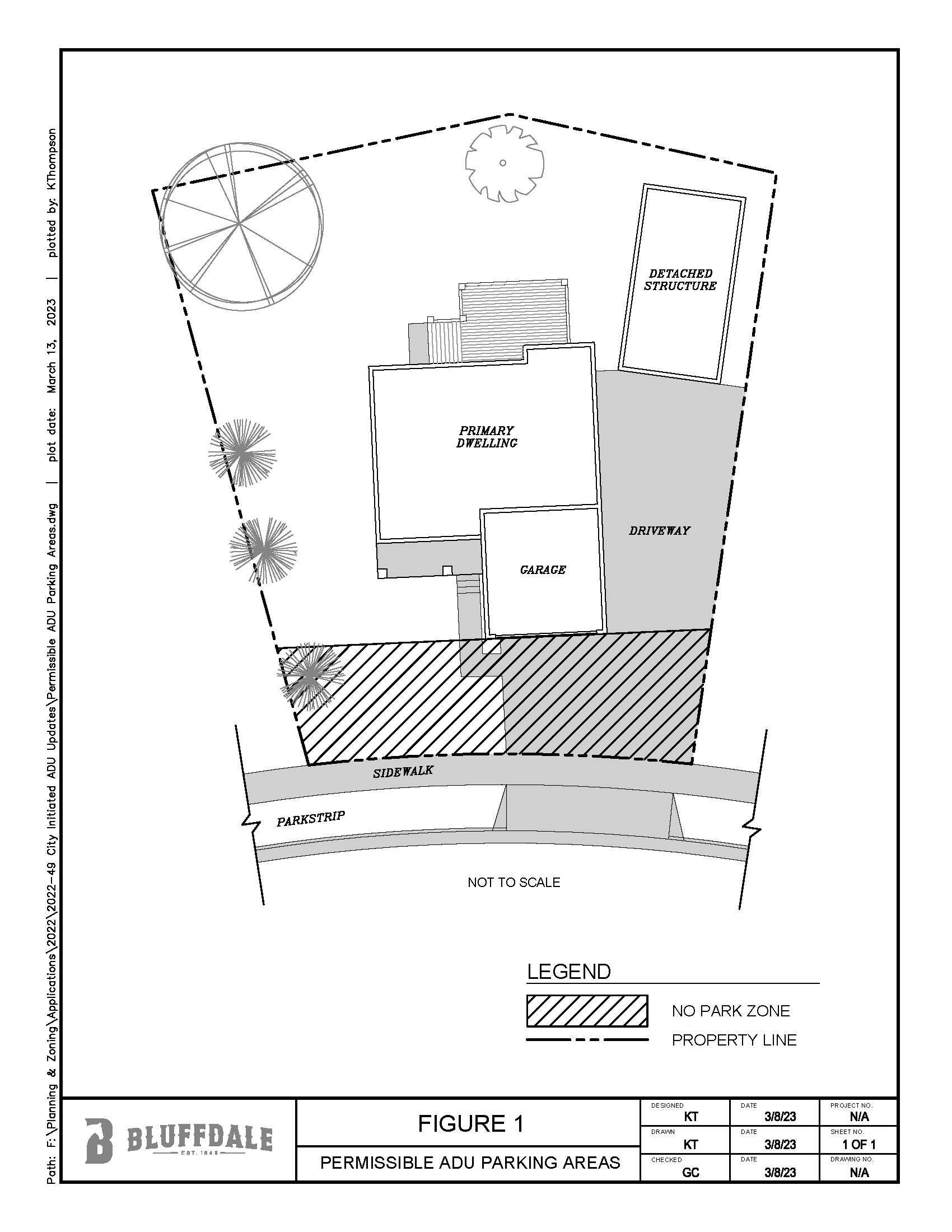
- Two off-street parking spaces required (not including 2 spaces for main dwelling), as shown in diagram – Refer to 11.340.040
- A D-ADU shall comply with all building construction and fire codes in effect at the time the D-ADU is constructed, created, or subsequently remodeled, including obtaining the required building and other permits.
- D-ADUs shall be a permanent structure anchored to a foundation which meets the adopted building codes. Trailers, mobile homes, tiny homes with wheels, and other portable or temporary structures, or structures with wheels shall not be permitted as a D-ADU.
- Entrance Locations. The entrance to a D-ADU shall be located:
- Facing an alley, public street, rear or side façade of the primary dwelling, or rear yard of the single-family dwelling on the same property.
- Facing a side or rear property line provided the entrance is located a minimum of 10 feet from the side or rear property line if at ground level or first story level or 20 feet from side or rear property line if above the first story.
- Exterior stairs leading to an entrance shall be located a minimum of 20 feet from a side or rear property line.
- Exterior stairways and landings shall not encroach within 20 feet of an adjacent property containing a single-family or townhome residence.
-
Accessory Dwelling Units (ADU)
*Refer to BCC 11.340.060 for all standards
- One off-street parking space required (not including 2 spaces for main dwelling) Refer to 11.340.040
- Location: An I-ADU must be enclosed within the primary dwelling
- Entrance Locations. Entrances to an I-ADU shall only be permitted in the following locations:
- An existing entrance to the single-family dwelling;
- Exterior stairs on lots other than a corner lot, leading to an entrance above or below the first level of the principal structure, may be located on a side or rear elevation of a building;
- Located on the rear facade of the dwelling.
- Ownership: The single-family dwelling and the I-ADU shall remain in single ownership and either the single-family dwelling or the I-ADU shall be owner-occupied in accordance with 11.340.040
Radon
8-
Radon
Radon is a cancer-causing, radioactive gas. The U.S. Surgeon General has warned that radon is the second leading cause of lung cancer, next to smoking. Radon is estimated to cause 20,000 deaths in the U.S. each year.
Radon comes from the natural (radioactive) breakdown of uranium in soil, rock and water and gets into the air you breathe. Radon can get into any type of building – homes, offices, and schools. You and your family are most likely to get your greatest exposure at home, where you spend most of your time.
-
Radon
Because radon is a gas, it can get in where solids can’t.
Common problems allowing radon to enter homes include:
- Cracks in solid floors
- Construction joints
- Cracks in walls
- Gaps in suspended floors
- Gaps around service pipes
- Cavities inside walls
- The water supply
-
Radon
You can’t smell, taste, or see radon. The only way to know if you have high levels of radon in your home is to test.
You can order an easy to use radon test kit at radon.utah.gov starting at $10.95 or from UtahRadon.org for free
-
Radon
The average outdoor level is 0.4 picocuries per liter (pCi/L), while the average indoor level is 1.3 pCi/L. The average Utah home has 5.3 pCi/L. The Environmental Protection Agency (EPA) action level is 4.0 pCi/L. Fix your home if the levels are above the 4.0 action level.
-
Radon
First, RELAX! Radon levels can be fixed inside every home.
Radon levels can be reduced by installing a radon mitigation system. These systems vent radon from below your home into the air above to stop radon from concentrating inside. A certified radon technician can install a system quickly to keep you and your loved ones safe.
-
Radon
A hole is bored in the basement concrete slab and a suction pump exhausts the gases to the outside.
-
Radon
Radon mitigation systems can be installed to lower your radon level for about the same cost as other common home repairs – usually about $1,500.
-
Radon
In addition to venting radon, the mitigation system reduces asthma triggers, air particles, volatile organic compounds, and mold. Improving the indoor air quality in your home and creating a value added addition increases your home value.
Budget
8-
Budget
In government, we use fund accounting (not to be confused with fun accounting). Different revenue sources can only be used to pay for specific expenses. These differing revenues and expenses are tracked in separate funds (accounting books).
The different budget funds are shown in the following graphic (click to enlarge):
-
Budget
Updated June 2025
-
Budget
Property tax is calculated to be revenue neutral, generally meaning that when property values increase, the property tax rates decrease. Or, when property values decrease, the property tax rate increases. So, even if your property value increases, that doesn’t mean the city will get more revenue. This is why the Certified Tax Rate (CTR) changes each year.
Also, only a small percentage of the overall property tax comes to Bluffdale City. Other entities like Jordan School District and Salt Lake County, also levy taxes on your property. They can choose to change their CTR to increase the amount of revenue they receive. They also have Truth in Taxation notification process, just like the City does.
The amount of increase the City is proposing will increase the property tax revenue overall around $570,000.
You can watch the video The Utah Association of Counties created that explains how property tax is calculated in Utah.
-
Budget
We cannot transfer money from the Fire and Police Protection Fund back to the General Fund. We are transferring money from the General Fund to the Fire and Police Protection Fund. The Fire and Police Protection Fund was created to give more transparency to how property taxes are being used.
-
Budget
Our residents asked for a transparent way to track the costs of our Fire and Police Services. They want to be able to verify that a proposed property tax increase would be used to pay for improvements in our Fire and Police Services. The accounting in the Fire and Police Protection Fund clearly and transparently shows the sources of the revenue and where the money is being spent. No money can be transferred out of this fund to pay for any other City needs.
-
Budget
The City Council adopted an amended Consolidated Fee Schedule and made it effective September 1, 2024. The amended Fee Schedule includes a new Public Safety fee that can only be used to pay for public safety costs. The amount of the fee is based on the type of property you own and is calculated to cover the increased cost of public safety services this year. The bulk of the public safety costs are still paid by other revenue sources.
For more information on the Bluffdale Consolidated Fee Schedule, see the October 2024 Bluffdale Times newsletter.
-
Budget
- Contact the City Council members via email.
- Contact Mayor Hall via email.
- See the Mayor's Messages on budgeting in the Newsletter
- Talk to the Finance Department
-
Budget
Salt Lake County offers a tax relief program for those who qualify. You must apply by September 1. They also have other assistance programs, like rental relief, available. Learn more about the programs and see if you qualify at slco.to/TaxRelief or slco.to/AssistancePrograms.
14600 South Railroad Underpass Project
8-
14600 South Railroad Underpass Project
The project will use a process known as “box jacking” to install the new underpass without any service interruptions to the trains. This innovation, developed in Italy, involves placing a temporary bridge (the Verona Method) to support the rails while the box that will serve as the underpass for 14600 South is gradually pushed or jacked beneath. This is the first time this process has been used in the United States.
This construction method is necessary to prevent service disruptions to both Union Pacific Railroad and the UTA FrontRunner line.
-
14600 South Railroad Underpass Project
An Environmental Study is a high-level study that identifies and studies the impacts and large infrastructure projects and determines mitigation measures. These studies are conducted before the design and construction of a project to understand how proposed improvements can be implemented safely and responsibly. Environmental Studies analyze several different factors in an area where improvements are proposed, such as land use, zoning, land acquisition, noise, water, species, archeological resources, and more. Once a decision is made to move forward with a project, further analysis of the environment, such as geotechnical exploration and soil analysis, is performed as part of the design stage.
The Environmental Study for the 14600 South Railroad Construction Project
Other documents related to the project can be found on the project page.
-
14600 South Railroad Underpass Project
An environmental study for this project was conducted in 2022. As part of this study, a public meeting was held where the results of the study were provided for public review and comment on December 7, 2022.
The Environmental Study for the 14600 South Railroad Construction Project
Other documents related to the project can be found on the project page.
-
14600 South Railroad Underpass Project
As we work on the improvements, increased noise, dust, and vibrations may be present.
Normal hours of operation are 7:00 a.m. to 5:00 p.m. During the installation of the Verona Method and the Box Push, the contractor will be working around the clock to meet Union Pacific Railroad (UPRR) and Utah Transit Authority (UTA) restrictions.
The crew prioritizes safety and will keep the site clean and contained.
Vibrations are monitored to stay within safe, typical construction levels.
-
14600 South Railroad Underpass Project
Our Emergency Manger has identified alternate routes throughout our community that can be used during emergencies. Before a safe route can be established, onsite crews will evaluate the area and decide on the safest way for egress and ingress into an area. Like with traffic accidents, any emergency may cause temporary difficulties as crews arrive and assessments are made.
A recent example shows how this plan works. On Monday, January 19, 2026, a contractor installing fiber hit a gas line at approximately 1200 West 14600 South. 911 was called at approximately 1:35 pm and immediately dispatched Bluffdale Fire and Police Departments to the scene. Upon arrival, the priority of the crew was to assess and create a controlled area, including evacuating the park and nearby homes. Once the perimeter was established, Fire Chief Matt Evans was able to implement the Emergency Access Plan and by 2:15 pm opened the Jordan River Parkway Trail to allow egress and ingress to Spring View Parkway. Traffic was able to move through this access point until approximately 4:15 pm, when the road to the main entrance was safe to use again.
-
14600 South Railroad Underpass Project
For immediate concerns, call the 24-hour hotline at 385-247-0775.
You can also email the project team at OneLaneBridge@bluffdale.gov. Please note that emails are not monitored after normal work hours.
-
14600 South Railroad Underpass Project
Sign-up for project updates
Updates can also be found on the project webpage.
Sign-up for City alerts
Choose Project Updates for information about scheduled Bluffdale projects.
Choose Emergency Alerts for information about emergency situations throughout the city.
Access to the alerts is also available anytime on the city alert page.
-
14600 South Railroad Underpass Project
Bluffdale is part of a quiet zone with the Federal Railroad Administration (FRA) that includes cities in Salt Lake County and Utah County. However, Union Pacific is federally mandated to give a warning when entering a construction zone. We have no control over how or when they use their horns. They also do not provide information to us about when they will be using their horns.